Windsor Mews, Adamsdown Square, Cardiff
£850 pcm
Property Features
- Available 31.03.2026
- Part Furnished
- Spacious & Modern
- Suitable for Couples
- Not suitable for children
- 1 x Parking Space
Property Summary
*Viewings between 12-5PM - 16th-19th of Feb*
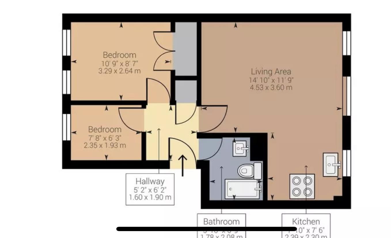
Maison are pleased to offer this refurbished two bedroom flat, conveniently located in the City Centre. Perfect for a couple of single person.
This well proportioned flat has been decorated to a great standard and compromises of a good size lounge, double bedroom, study room/ walk in wardrobe, a bright and spacious bathroom with shower over head, 1 storage cupboard and a newly fitted kitchen.
The property further benefits from allocated off-road parking and a short walk to the City Centre and the bustling shops, pubs and restaurants.
In order to secure the property we would be grateful if you could provide a holding deposit payment of one week’s rent. This will go in its entirety towards the first month’s rent.
Please NOTE there is a Right to retention of the holding deposit for failing to enter a Occupational Contract should a contract holder choose not to enter a Occupational Contract, or fail to take reasonable steps to enter a Occupational Contract.
The security deposit will be due once the references have passed. When the security deposit is received we will draft an Occupational Contract and the security deposit will be registered within 30 days of receiving.
The remainder of the first month's rent is required following successful completion of the referencing process, which is to be paid before your move in day.
Maison are pleased to offer this refurbished two bedroom flat, conveniently located in the City Centre. Perfect for a couple of single person.
This well proportioned flat has been decorated to a great standard and compromises of a good size lounge, double bedroom, study room/ walk in wardrobe, a bright and spacious bathroom with shower over head, 1 storage cupboard and a newly fitted kitchen.
The property further benefits from allocated off-road parking and a short walk to the City Centre and the bustling shops, pubs and restaurants.
In order to secure the property we would be grateful if you could provide a holding deposit payment of one week’s rent. This will go in its entirety towards the first month’s rent.
Please NOTE there is a Right to retention of the holding deposit for failing to enter a Occupational Contract should a contract holder choose not to enter a Occupational Contract, or fail to take reasonable steps to enter a Occupational Contract.
The security deposit will be due once the references have passed. When the security deposit is received we will draft an Occupational Contract and the security deposit will be registered within 30 days of receiving.
The remainder of the first month's rent is required following successful completion of the referencing process, which is to be paid before your move in day.














